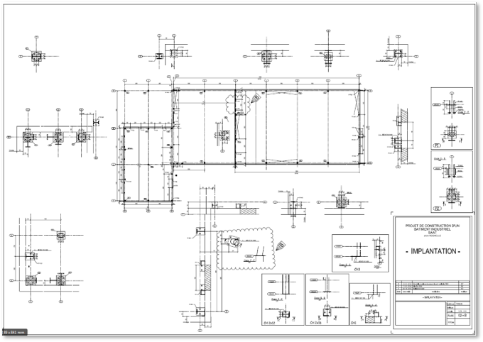
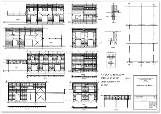
Bâtiment industriel SAAT (17)